Appartement de caractère avec exterieur

Appartement
Village Saint-Paul

  • Paris 4e
  • 5 pièces
  • 3 chambres
  • 161,58 m²
  • Référence 6516

3 690 000 €

Appartement de caractère avec exterieur

Être recontacté
Contact

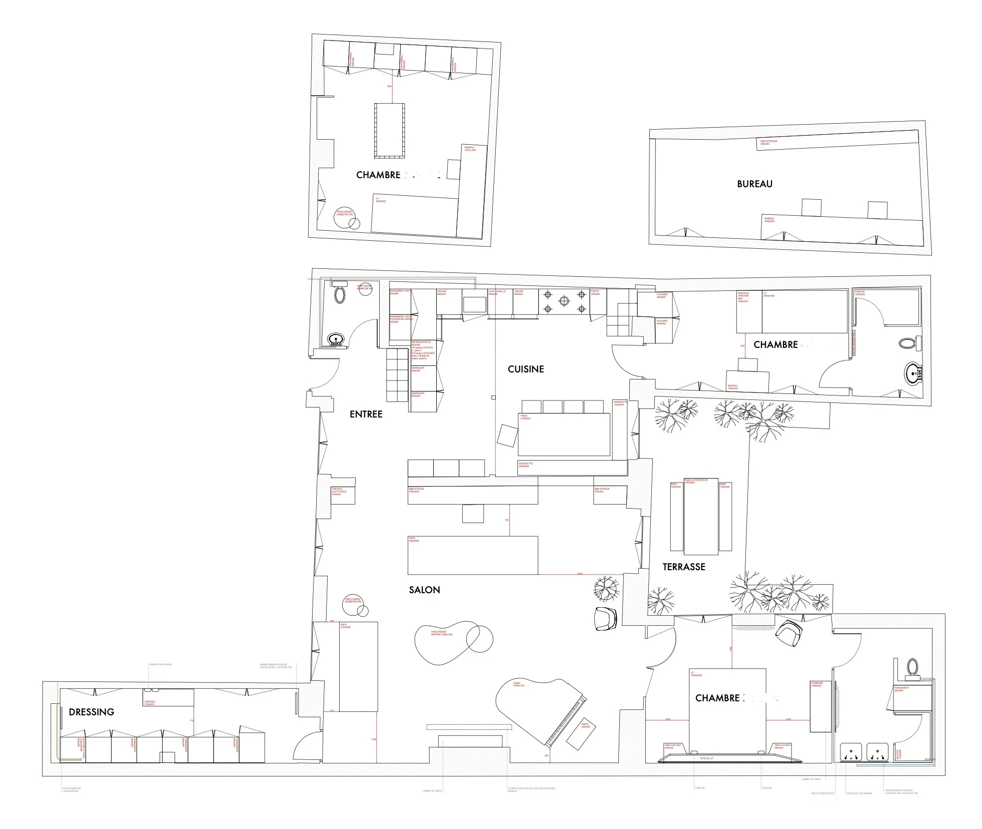
Exclusivité - Entre les quais de Seine et Saint Paul, dans une rue très confidentielle, cet appartement de 130 m² carrez et 175 m² au sol conjugue le charme de l’ancien et une rénovation contemporaine d’une grande délicatesse.



Avec des volumes de plus de 3,50 mètres de hauteur sous plafond, l'appartement offre une atmosphère rare avec une réception baignée de lumière et ouverte sur une agréable terrasse au calme et d’une ravissante cour arborée.



L’appartement se compose d’une vaste pièce de réception aux belles proportions, sublimée par ses hautes fenêtres, ses sols anciens et sa cheminée.

La cuisine, parfaitement intégrée et réalisée dans des matériaux nobles (bois massif, marbre), s’inscrit dans une esthétique sobre.



La partie nuit comprend trois chambres, dont une suite ouverte sur la terrasse.

Une chambre avec sa salle de douche, une autre chambre d'enfant en mezzanine, un très beau dressing, et un bureau en mezzanine.



L’adresse, la hauteur sous plafond, la qualité des matériaux et l’ouverture sur l’extérieur confèrent à ce bien un caractère singulier, à la fois intime et raffiné.



Un appartement de charme, rare dans ce secteur historique, à quelques pas de la Seine et Île Saint Louis.



Les atouts du bien

Les atouts

  • Calme absolu
  • Terrasse

  • Ancien
  • Digicode

  • Interphone

Caractéristiques du bien

Détails

Type de bien

Appartement

Surface

161,58 m²

Prix

3 690 000 €

Nombre de chambres

3

Pièces

5

Commodités

Digicode, Interphone

Caractéristiques particulières

Calme absolu, Terrasse, Ancien

Honoraires

À la charge de l’acquéreur

Prix de vente : 3 690 000 €

Prix hors honoraires : 3 530 000 €

Montant des honoraires : 4.53% TTC

Plan

Plan-0

Immeuble et copropriété

Charges

1 500 € / trimestre

Performances énergétiques

GES

Énergie - Estimation des émissions - 2026-02-25

DPE

Énergie - Consommation conventionnelle - 2026-02-25

Consommation annuelle d’énergie

3850 € / an

Médias

Image du bien : Appartement de caractère avec exterieur 2 Image du bien : Appartement de caractère avec exterieur 3 Image du bien : Appartement de caractère avec exterieur 4
Image du bien : Appartement de caractère avec exterieur 0
Image du bien : Appartement de caractère avec exterieur 1
Image du bien : Appartement de caractère avec exterieur 2
Image du bien : Appartement de caractère avec exterieur 3
Image du bien : Appartement de caractère avec exterieur 4
Image du bien : Appartement de caractère avec exterieur 5
Image du bien : Appartement de caractère avec exterieur 6
Image du bien : Appartement de caractère avec exterieur 7
Image du bien : Appartement de caractère avec exterieur 8
Image du bien : Appartement de caractère avec exterieur 9
Image du bien : Appartement de caractère avec exterieur 10

Nos biens en France & International

Partager

Partager le bien “Appartement de caractère avec exterieur Village Saint-Paul”

Wishlist

Prix
Surface
Pièces

Pièces

Chambres

Créer une alerte

Suggéré

Découvrir
nos dernières ventes

Artisans de rencontres entre lieux d’histoires et vies nouvelles.

Découvrir
nos dernières ventes
Tour eiffel au dessus des toits quartier de chaillot paris

Rive Gauche

Ici, le prestige vient de la richesse des racines, de l’esprit rive gauche insufflé par de nombreux artistes et intellectuels.

Rive Gauche
Discover

Rive Droite

Cette rive est celle de la diversité et des contrastes qui font le bonheur de la cité.

Rive Droite
Discover

Me connecter

Créer mon compte