Appartement traversant aux vues magiques

Appartement
Varenne

  • Paris 7e
  • 2 pièces
  • 1 chambre
  • 57,19 m²
  • Référence 6556

1 330 000 €

Appartement traversant aux vues magiques

Être recontacté
Contact

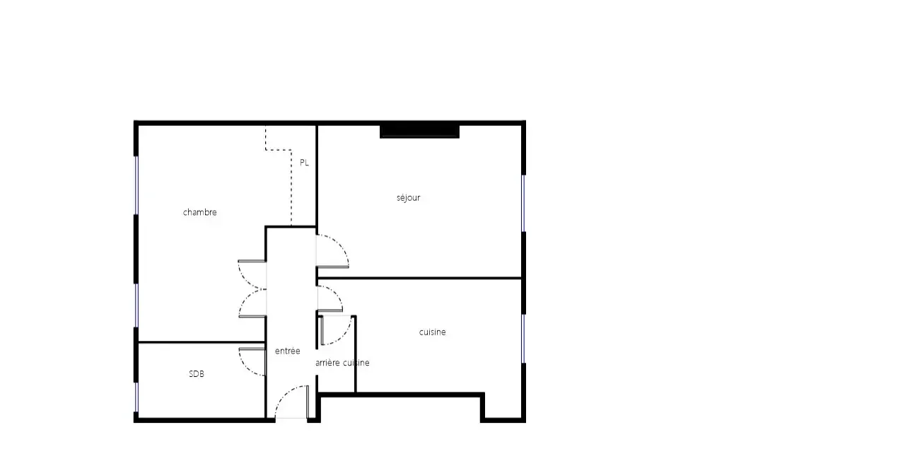
Situé au quatrième étage avec ascenseur à mi palier, un appartement traversant de 57,19 m² Loi Carrez qui comprend une entrée, un salon, une grande cuisine, une chambre, une salle de bains et un débarras.

Les vues des jardins de Matignon pour la chambre au calme exposée à l'est ainsi que les vues Tour Eiffel et Dôme des Invalides pour le salon et la cuisine exposés à l'ouest sont réservées à quelques appartements dont celui-ci.

Une rénovation révèlera le potentiel de ce bien unique.



Les atouts du bien

Les atouts

  • Vue Tour Eiffel
  • Vue dégagée

  • Parquet, moulures
  • Sans vis-à-vis

  • Ancien
  • Cheminée

  • Ascenseur
  • Digicode

  • Interphone

Caractéristiques du bien

Détails

Type de bien

Appartement

Surface

57,19 m²

Prix

1 330 000 €

Nombre de chambres

1

Pièces

2

Commodités

Ascenseur, Digicode, Interphone

Caractéristiques particulières

Vue Tour Eiffel, Vue dégagée, Parquet, moulures, Sans vis-à-vis, Ancien

Honoraires

À la charge de l’acquéreur

Prix de vente : 1 330 000 €

Prix hors honoraires : 1 278 846 €

Montant des honoraires : 4.00% TTC

Plan

Plan-0

Immeuble et copropriété

Nombre d’étages

6

Charges

187 € / mois

Performances énergétiques

DPE

Énergie - Consommation conventionnelle - 2026-03-30

GES

Énergie - Estimation des émissions - 2026-04-13

Consommation annuelle d’énergie

1390 € / an

Médias

Image du bien : Appartement traversant aux vues magiques 2 Image du bien : Appartement traversant aux vues magiques 3 Image du bien : Appartement traversant aux vues magiques 4
Image du bien : Appartement traversant aux vues magiques 0
Image du bien : Appartement traversant aux vues magiques 1
Image du bien : Appartement traversant aux vues magiques 2
Image du bien : Appartement traversant aux vues magiques 3
Image du bien : Appartement traversant aux vues magiques 4
Image du bien : Appartement traversant aux vues magiques 5
Image du bien : Appartement traversant aux vues magiques 6
Image du bien : Appartement traversant aux vues magiques 7
Image du bien : Appartement traversant aux vues magiques 8
Image du bien : Appartement traversant aux vues magiques 9
Image du bien : Appartement traversant aux vues magiques 10

Nos biens en France & International

Partager

Partager le bien “Appartement traversant aux vues magiques Varenne”

Wishlist

Prix
Surface
Pièces

Pièces

Chambres

Créer une alerte

Suggéré

Découvrir
nos dernières ventes

Artisans de rencontres entre lieux d’histoires et vies nouvelles.

Découvrir
nos dernières ventes
Tour eiffel au dessus des toits quartier de chaillot paris

Rive Gauche

Ici, le prestige vient de la richesse des racines, de l’esprit rive gauche insufflé par de nombreux artistes et intellectuels.

Rive Gauche
Discover

Rive Droite

Cette rive est celle de la diversité et des contrastes qui font le bonheur de la cité.

Rive Droite
Discover

Me connecter

Créer mon compte