Maison jardin et toit-terrasse au calme

Maison
Gros Caillou

  • Paris 7e
  • 8 pièces
  • 5 chambres
  • 233 m²
  • Référence 6397

4 900 000 €

Maison jardin et toit-terrasse au calme

Téléphone
E-mail

GRENELLE-CLER A proximité immédiate des commerces de la rue Cler, en retrait de la copropriété, se situe une maison particulière ancienne de 233 m² loi Carrez et 265 m² au sol, exposée au sud.

Elle s'élève sur trois niveaux, elle bénéficie d'un joli jardin clos d'environ 100 m² et d'une grande terrasse sur le toit de 85 m².


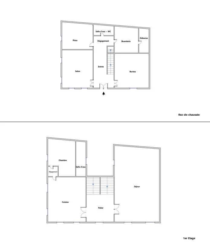
Au rez-de-chaussée : une entrée, un salon, une chambre, un bureau, une buanderie.

Au premier étage : un salon, une cuisine familiale équipée, une chambre, une salle de douche avec wc et un dressing.

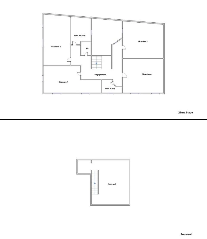
Au second étage : quatre chambres, une salle de bains et une salle de douche.

Au troisième étage, une terrasse facilement accessible. En sous-sol se trouve une cave voûtée aménagée en home cinéma ou en salle de soirées.

L'ensemble, avec un bel escalier central, reçoit beaucoup de lumière et offre de beaux volumes avec des HSP de 3 m.

Elle se présente comme une maison bourgeoise au charme parisien et un esprit fin XIXe siècle.



Les atouts du bien

Les atouts

  • Terrasse
  • Ancien

  • Cheminée
  • Gardien

Caractéristiques du bien

Détails

Type de bien

Maison

Surface

233 m²

Prix

4 900 000 €

Nombre de chambres

5

Pièces

8

Commodités

Gardien

Caractéristiques particulières

Terrasse, Ancien

Honoraires

À la charge du vendeur

Plan

Plan-0 Plan-1

Immeuble et copropriété

Nombre d’étages

2

Gardien

Oui

Charges

730 € / mois

Performances énergétiques

Médias

Image du bien : Maison jardin et toit-terrasse au calme 2 Image du bien : Maison jardin et toit-terrasse au calme 3 Image du bien : Maison jardin et toit-terrasse au calme 4

Carnet d'adresses

Vous retrouverez des idées déco, des intérieurs Varenne, des découvertes culturelles et culinaires. Nos maisons n’auront jamais eu autant de fenêtres sur le monde ! 

Dessin à la plume de la rue cler à Paris par Guillaume Reynard pour Varenne

La vie du quartier

Le quartier a gardé son rythme pré-Haussmannien de Bourg flanqué au fond du Faubourg Saint-Germain. L’ambiance y est conviviale et détendue, le Champ-de-Mars est un terrain de jeux infini pour les enfants qui affluent à l’heure du goûter. 

Il y a un charme néo-tradi, une discrétion et une nonchalance qui donne un côté chaleureux au quartier. Les tables sont dans cette veine, une tradition toute jeune (XIXe siècle) mais solidement ancrée et exécutée, de l’Auberge Bressane, à la Fontaine de Mars, le Ptit Troquet, les Cocottes ou encore Firmin le Barbier, ici la cuisine est de la superbe brasserie française.

En savoir plus
Facade mur végétalisé du Musée du Quai Branly à Paris

Musée du Quai Branly

Musée. Arts et Civilisations d'Afrique, d'Asie, d'Océanie et des Amériques. 

Fontaine en pierre de style néoclassique de l'époque napoléonienne

La Fontaine de Mars

Des recettes du Sud-Ouest inspirées, par le chef Pierre Saugrain. 

Vue depuis le squarre rapp sur la tour Eiffel avec immeuble haussmanien pour cadre

Square Rapp

Découverte de cette toute petite rue du 7e arrondissement. 

Vitrine parisienne éclairée chocolatier avec macarons et choclat

Chocolaterie Pralus

Chocolats et pralulines. 

Devanture Brasserie parisienne avec logo les cocottes et serviettes de tables

Les Cocottes

Brasserie revisitée de façon raffinée et vins français. 

Etale de fromages emballés de la formagerie Marie-Anne Cantin

Fromager Marie-Anne Cantin

Fromages artisanaux soigneusement affinés et des séances de dégustation. 

Gourmandises emballées à gelée royale et pots de miel de la Famille Mary à Paris

Famille Mary

Maison familiale Française depuis 1921 - Vente de miel, gelée royale...



Image du bien : Maison jardin et toit-terrasse au calme 0
Image du bien : Maison jardin et toit-terrasse au calme 1
Image du bien : Maison jardin et toit-terrasse au calme 2
Image du bien : Maison jardin et toit-terrasse au calme 3
Image du bien : Maison jardin et toit-terrasse au calme 4
Image du bien : Maison jardin et toit-terrasse au calme 5
Image du bien : Maison jardin et toit-terrasse au calme 6
Image du bien : Maison jardin et toit-terrasse au calme 7
Image du bien : Maison jardin et toit-terrasse au calme 8
Image du bien : Maison jardin et toit-terrasse au calme 9
Image du bien : Maison jardin et toit-terrasse au calme 10
Image du bien : Maison jardin et toit-terrasse au calme 11
Image du bien : Maison jardin et toit-terrasse au calme 12
Image du bien : Maison jardin et toit-terrasse au calme 13
Image du bien : Maison jardin et toit-terrasse au calme 14
Image du bien : Maison jardin et toit-terrasse au calme 15
Image du bien : Maison jardin et toit-terrasse au calme 16
Image du bien : Maison jardin et toit-terrasse au calme 17

Nos biens dans le quartier Gros Caillou & alentours

  • Paris 7e
  • 4 pièces
  • 1 chambre
  • 77,25 m²
  • 1 050 000 €

Gros Caillou

Partager

Partager le bien “Maison jardin et toit-terrasse au calme Gros Caillou”

Wishlist

Prix
Surface
Pièces

Pièces

Chambres

Créer une alerte

Suggéré

Découvrir
nos dernières ventes

Artisans de rencontres entre lieux d’histoires et vies nouvelles.

Découvrir
nos dernières ventes
Tour eiffel au dessus des toits quartier de chaillot paris

Rive Gauche

Ici, le prestige vient de la richesse des racines, de l’esprit rive gauche insufflé par de nombreux artistes et intellectuels.

Rive Gauche
Discover

Rive Droite

Cette rive est celle de la diversité et des contrastes qui font le bonheur de la cité.

Rive Droite
Discover

Me connecter

Créer mon compte