Situation d'exception

Appartement
Breteuil

  • Paris 7e
  • 4 pièces
  • 1 chambre
  • 110 m²
  • Référence 6548

2 395 000 €

Situation d'exception

Être recontacté
Contact

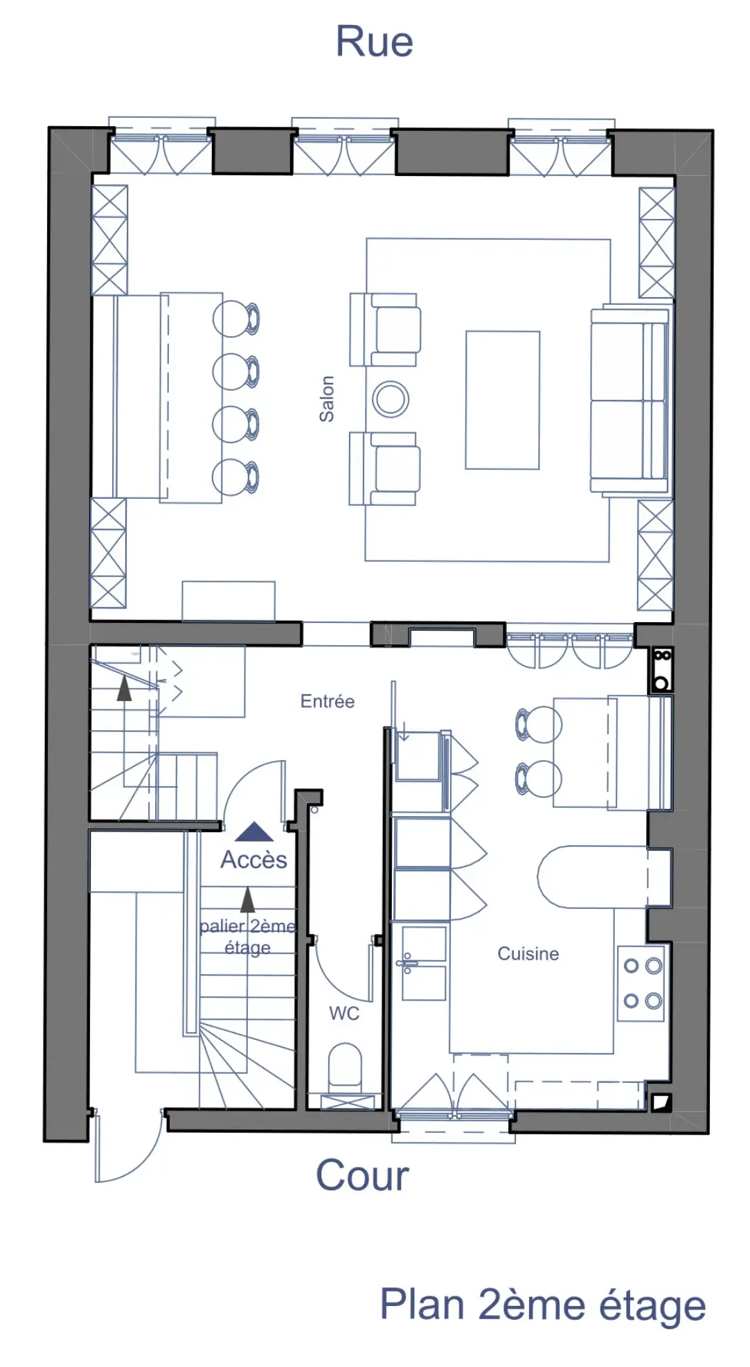
EXCLUSIVITE. Aux deux derniers niveaux d’un ancien hôtel particulier, bénéficiant de vues dégagées, se déploie un duplex traversant au charme exquis, d’une surface de 110,10 m² Carrez (141,62 m² au sol), entièrement repensé par un architecte de renom.


Le deuxième étage accueille une entrée, un salon baigné de lumière grâce à ses trois fenêtres orientées plein ouest, ainsi qu’une cuisine de réception pleine de caractère.


Au troisième étage, une vaste chambre de 30 m² s’accompagne d’une salle de bains, d’un dressing et d’une buanderie.


Le dernier niveau abrite un grenier aménagé de 25 m² au sol, éclairé par un Vélux, offrant un espace supplémentaire à imaginer.


En complément, il est possible d’acquérir un studio de 26 m² en sous-sol, proposé à 125 000 €, ainsi que deux studios situés aux premier et deuxième étages, de 9,88 m² et 9,95 m² Carrez, au prix de 180 000 € chacun.


La situation, le calme, la lumière omniprésente et les vues ouvertes confèrent à ce lieu rare une atmosphère de maison, préservée de l’agitation urbaine.

A proximité du Bon Marché, de Montparnasse et du marché ouvert le plus savoureux de Paris.


La date de libération des lieux est prévue à mi-octobre 2026.



Les atouts du bien

Les atouts

  • Vue dégagée
  • Sans vis-à-vis

  • Ancien
  • Duplex

  • Interphone

Caractéristiques du bien

Détails

Type de bien

Appartement

Surface

110 m²

Prix

2 395 000 €

Nombre de chambres

1

Pièces

4

Commodités

Interphone

Caractéristiques particulières

Vue dégagée, Sans vis-à-vis, Ancien, Duplex

Honoraires

À la charge de l’acquéreur

Prix de vente : 2 395 000 €

Prix hors honoraires : 2 302 885 €

Montant des honoraires : 4.00% TTC

Plan

Plan-0 Plan-1

Immeuble et copropriété

Nombre d’étages

3

Charges

870 € / mois

Performances énergétiques

DPE

Énergie - Consommation conventionnelle - 2025-11-09

GES

Énergie - Estimation des émissions - 2025-11-09

Consommation annuelle d’énergie

2140 € / an

Médias

Image du bien : Situation d'exception 2 Image du bien : Situation d'exception 3 Image du bien : Situation d'exception 4

Carnet d'adresses

Vous retrouverez des idées déco, des intérieurs Varenne, des découvertes culturelles et culinaires. Nos maisons n’auront jamais eu autant de fenêtres sur le monde ! 

Dessin Breteuil Guillaume Reynard Varenne

La vie du quartier

L’esplanade rythme cette parenthèse de quiétude autour de laquelle s’orchestre un plaisante vie de quartier avec d’excellents commerces de bouche, ainsi Gourmet, l’épicerie fine qui régale les riverains, Quatrehomme le fromager affineur dont la renommée dépasse largement l’arrondissement.


On se rejoint le dimanche, après un bootcamp ou un cours de yoga sur l’esplanade à la brasserie Vauban, fournisseur officiel de générations de repas dominicaux ou chez Oui mon général, néo-brasserie conviviale kids friendly.


Quelques raretés pimentent le paysage bienheureux du quartier, ainsi la Pharmacie des âmes, librairie ovni aux parutions confidentielles ou la pâtisserie Mori Yoshida qui emmène au pays du soleil levant par les papilles.


Plaisante et douce, la vie de quartier s’égrène presque comme en province, sous les raffinés atours de l’élégance parisienne. Un quartier îlot très convoité.

En savoir plus
Devanture bleu bistro Oui mon général et plaque de rue Betrand Paris 7

Oui Mon Général

Gastronomie d'inspiration française, grecque et espagnole dans une brasserie chic avec terrasse.

Pâtisserie Cyril Lignac framboises et citron

La Pâtisserie Cyril Lignac

Créations pâtissières originales dans une décoration design au comptoir en marbre veiné.

Store gris de la pâtisserie française MORI YOSHIDA quartier breteuil paris

Mori Yoshida

Macarons et gâteaux français classiques agrémentés d'une touche japonaise

Boutique Fromager - Affineur à Paris  avec étagères remplies de fromages

Fromagerie Quatrehomme

Fromagerie traditionnelle

Image du bien : Situation d'exception 0
Image du bien : Situation d'exception 1
Image du bien : Situation d'exception 2
Image du bien : Situation d'exception 3
Image du bien : Situation d'exception 4
Image du bien : Situation d'exception 5
Image du bien : Situation d'exception 6
Image du bien : Situation d'exception 7
Image du bien : Situation d'exception 8

Nos biens dans le quartier Breteuil & alentours

Partager

Partager le bien “Situation d'exception Breteuil”

Wishlist

Prix
Surface
Pièces

Pièces

Chambres

Créer une alerte

Suggéré

Découvrir
nos dernières ventes

Artisans de rencontres entre lieux d’histoires et vies nouvelles.

Découvrir
nos dernières ventes
Tour eiffel au dessus des toits quartier de chaillot paris

Rive Gauche

Ici, le prestige vient de la richesse des racines, de l’esprit rive gauche insufflé par de nombreux artistes et intellectuels.

Rive Gauche
Discover

Rive Droite

Cette rive est celle de la diversité et des contrastes qui font le bonheur de la cité.

Rive Droite
Discover

Me connecter

Créer mon compte