With the feel of a house, next to the church
Sold

Apartment
Saint-Sulpice

  • Paris 6e
  • 6 rooms
  • 3 bedrooms
  • 122,93 m²

With the feel of a house, next to the church

Request a callback
Contact

Property sold, contact your real estate advisor to support you in your search or your selling project.

PLACE SAINT-SULPICE


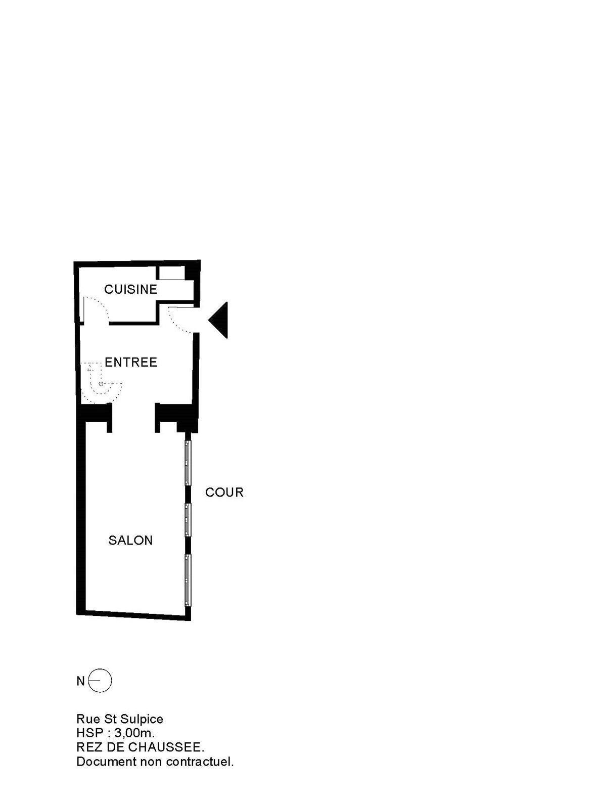
Nestled at the back of a lovely courtyard planted with trees, sheltered from prying eyes, this duplex apartment with a 123 sq.m (1,324 sq ft) Carrez Law surface (127.5 sq.m or 1,372 sq ft of floor space) is located on the ground floor and first floor.

Its first level comprises an entrance leading to a small kitchen and a living room.

An interior staircase leads to the upper level featuring a dining room, a kitchen, three bedrooms, a home office and two bathrooms.

Two cellars. Thanks to the modular layout with several possible entrances, the space can be redesigned to suit your needs and tastes.



Advantages of property

Advantages

  • Absolute calm
  • Old (Antique)

  • Duplex
  • Fireplace

  • Elevator
  • Digital code

  • Guard
  • Intercom

Address Book

From decoration ideas and Varenne’s interiors, to an array of cultural and culinary discoveries, our homes have never been such a window onto the world! 

Dessin à la plume de la place Saint Sulpice avec sa fontaine et son église à Paris par Guillaume Reynard Varenne

Neighborhood Life

The gentle pace of life in the area can be enjoyed in all its forms, from a walk at daybreak across Place Saint-Sulpice to the comforting restaurants on Rue Servandoni where Bon Saint-Pourçain is top of our list, or the small Italian restaurants on Rue Canette.

Show more

Jardin du Luxembourg

Created in the 17th century at the request of Marie de Médicis, this magnificent 23-hectare green space has become a haven of peace, world-famous for its collections of fruit trees and orchids.

Guided tours are organized on the first Wednesday of each month, from April to October inclusive.

Le Bon Saint Pourçain

It's a bistro as ordinary as it is unusual, nestled along a narrow, gently sloping alleyway in a postcard Paris, with a few famous monuments as neighbors.

TASCHEN

The Home Of Beautiful Books

Place Saint Sulpice Paris : Vue des sculptures de la fontaine et de l'église

Eglise Saint-Sulpice

Catholic parish church listed as a historic monument since 20 May 1915

Our properties sold in the Saint-Sulpice neighborhood and surroundings

The Saint Sulpice district is one of the most prestigious neighborhoods in Paris, with a unique charm and history. 

Properties in the Saint Sulpice district are in high demand due to their privileged location and historic architecture. Investing in prestige real estate in the Saint Sulpice district can be an excellent decision for those looking to acquire a high-end property in one of Paris' most exclusive neighborhoods.

Share

Share the property “With the feel of a house, next to the church Saint-Sulpice”

Wishlist

Price
Area
Rooms

Rooms

Bedrooms

Create an alert

Suggested

Discover
our latest sales

Craftsmen of encounters between places of history and new lives.

Discover
our latest sales
Tour eiffel au dessus des toits quartier de chaillot paris

Left Bank

Here, prestige comes from the richness of roots, from the Left Bank spirit instilled by numerous artists and intellectuals.

Left Bank
Discover

Right Bank

This bank of the Seine is where you’ll find the sort of diversity and contrasts that make the city such a marvel.

Right Bank
Discover

Log in

Create my account