A unique seafront property in Cannes

Apartment
Cannes - Vieux Port

  • Cannes
  • 11 rooms
  • 7 bedrooms
  • 407,04 m²
  • Reference 6318

7 950 000 €

A unique seafront property in Cannes

Request a callback
Contact

At the heart of Cannes, overlooking a Plage du Midi beach and just a five-minute walk from the old port of Cannes, Villa Saint Yves is an exceptional, rare and intimate property on the water, facing towards the Lérins Islands and the Estérel mountain range.

A unique property in a majestic Belle Epoque villa, this 407 sq.m (4,381 sq ft) apartment spans three floors of the private mansion (out of a total of four) offering vast volumes and superb sea views.



A 150 sq.m (1,615 sq ft) private garden, a stunning panoramic terrace and direct access to the beach through a discreet gate round off this rare property.



The three main lots all face south (and north in the main courtyard) and showcase the refined Mediterranean architecture of the early 20th century.



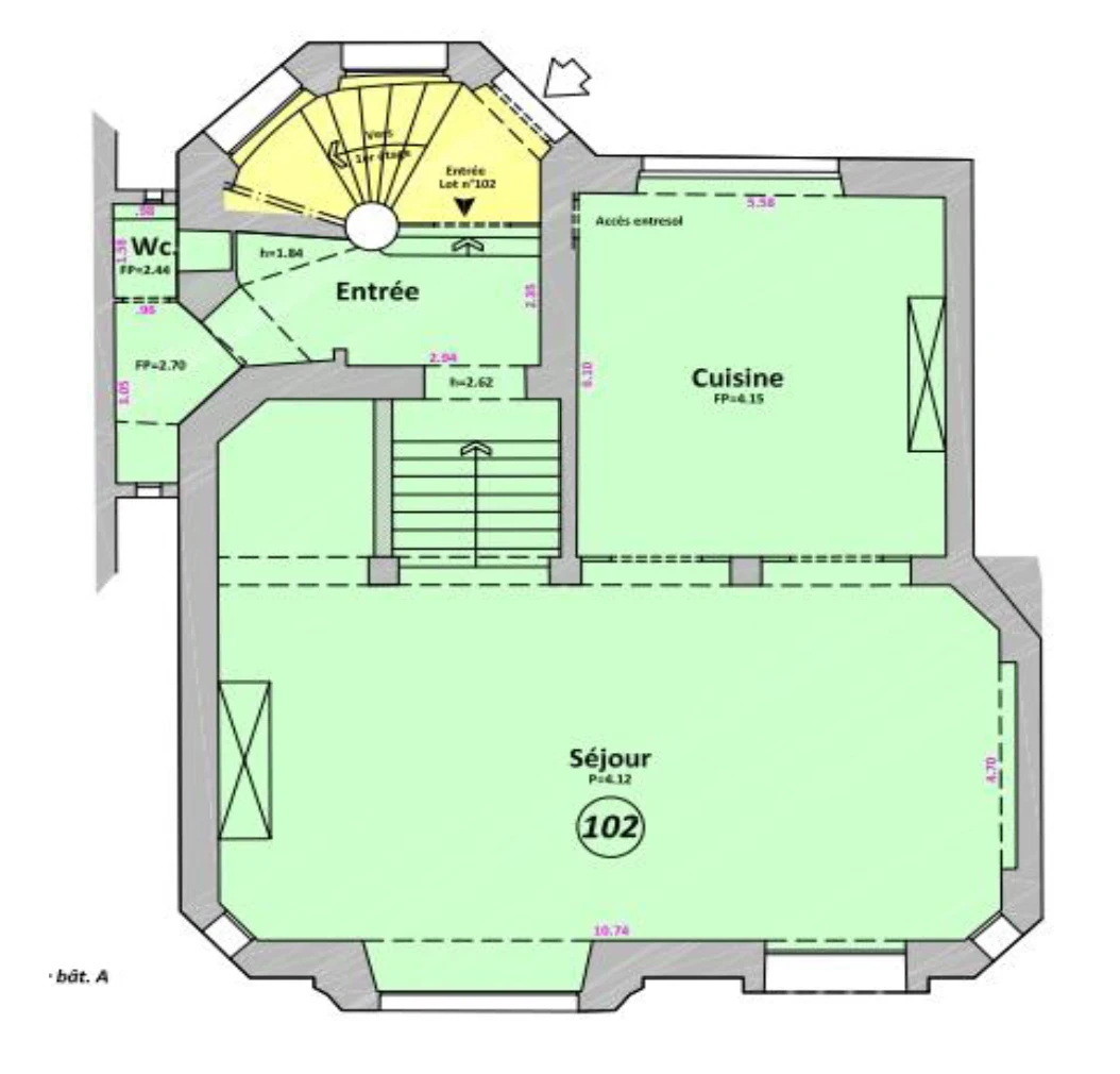
On the ground floor is a beautiful hall, directly overlooking the reception rooms, main kitchen and dining room with its ceilings up to 4.17m (13.68ft) high and terrace and garden access.



Up the interior staircase through a second entrance door is the garden level with four bedrooms and their bath/shower rooms, a family room/workshop with garden access and a second kitchen.



On the first floor up the main communal stairs of the private mansion is a magnificent suite facing the sea with a balcony and a bathroom with shower and toilet, and a walk-in wardrobe.

The two other bedrooms each have their own shower room and toilet, one with a sea view.

TV area and utility room.



This rare property combines period charm with the functionality of a family or reception residence.



A rare find: steeped in history, on the water’s edge, a stone’s throw from the old port, Forville market and Le Suquet, in one on the most authentic neighbourhoods in Cannes.



Advantages of property

Advantages

  • Absolute calm
  • Parking

  • Terrace
  • Clear view

  • No opposite
  • Old (Antique)

  • Duplex
  • Air conditioning

  • Fireplace
  • Digital code

Property Features

Details

Type of Property

Apartment

Area

407,04 m²

Price

7 950 000 €

Number of Bedrooms

7

Rooms

11

Amenities

Digital code

Special Features

Absolute calm, Parking, Terrace, Clear view, No opposite, Old (Antique), Duplex

Fees

Payable by the buyer

Selling price: 7 950 000 €

Price excluding fees: 7 571 000 €

Fee amount: 5.01% (including all taxes)

Floor Plan

Floor Plan-0 Floor Plan-1 Floor Plan-2

Building and Co-ownership

Number of Floors

4

Charges

1 529 € / year

Energy Performance

DPE

Énergie - Consommation conventionnelle - 2025-06-20

GES

Énergie - Estimation des émissions - 2025-06-20

Consommation annuelle d’énergie

7896 € / an

Media

Picture of property: A unique seafront property in Cannes 2 Picture of property: A unique seafront property in Cannes 3 Picture of property: A unique seafront property in Cannes 4
Picture of property: A unique seafront property in Cannes 0
Picture of property: A unique seafront property in Cannes 1
Picture of property: A unique seafront property in Cannes 2
Picture of property: A unique seafront property in Cannes 3
Picture of property: A unique seafront property in Cannes 4
Picture of property: A unique seafront property in Cannes 5
Picture of property: A unique seafront property in Cannes 6
Picture of property: A unique seafront property in Cannes 7
Picture of property: A unique seafront property in Cannes 8
Picture of property: A unique seafront property in Cannes 9
Picture of property: A unique seafront property in Cannes 10
Picture of property: A unique seafront property in Cannes 11
Picture of property: A unique seafront property in Cannes 12
Picture of property: A unique seafront property in Cannes 13
Picture of property: A unique seafront property in Cannes 14
Picture of property: A unique seafront property in Cannes 15
Picture of property: A unique seafront property in Cannes 16

Our Properties in France & International

  • Sèvres
  • 8 rooms
  • 5 bedrooms
  • 260 m²
  • 1 995 000 €

Share

Share the property “A unique seafront property in Cannes Cannes - Vieux Port”

Wishlist

Price
Area
Rooms

Rooms

Bedrooms

Create an alert

Suggested

Discover
our latest sales

Craftsmen of encounters between places of history and new lives.

Discover
our latest sales
Tour eiffel au dessus des toits quartier de chaillot paris

Left Bank

Here, prestige comes from the richness of roots, from the Left Bank spirit instilled by numerous artists and intellectuals.

Left Bank
Discover

Right Bank

This bank of the Seine is where you’ll find the sort of diversity and contrasts that make the city such a marvel.

Right Bank
Discover

Log in

Create my account